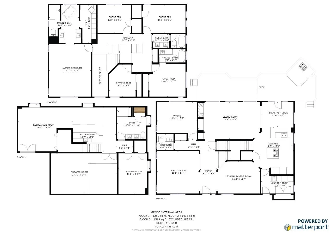
and Santosh Manjrekar present - 7725 Lebrun Ct Lone Tree CO 80124

Floor Plan

—  4662 square feet of updates and upgrades in an efficient layout